268 0 0 0

Eladó régen irodaként funkcion

75 M Ft

kérem, hívjanak vissza!

Eladó társasházi téglalakás
Szeged, Belváros
Azonosító: KAAS-3179
140 m² alapterületű
használt ingatlan
Eladó régen irodaként funkcionált ingatlan Szegeden a belvárosban.
Szegeden a Belvárosban eladó 140 nm-es régen irodaként funkcionált épület.
Ajánlom ezt az ingatlant befektetésre, az épület alkalmas lakások kialakítására, akár irodának cégek számára.


Cégünk az ügyfeleink részére ingyenesen vállalja, a megegyezés sikeres lebonyolítását, jogi tanácsadást, illetve teljes körű CSOK és hitel ügyintézést!
A kínálatában található összes ingatlannal kapcsolatban felvilágosítást tudunk nyújtani!
Kérje ingyenes tájékoztatásunkat telefonon, vagy személyesen irodánkban a Szeged, Vitéz utca 32 szám alatt!

Szolgáltatásaink vevőink részére díjmentesek!
Amennyiben felkeltettem érdeklődését, kérem, hívjon bizalommal!

Zeleznik István
Értékesítési vezető
Tel: +36309626389
E-mail cím: zeleznik.istvan@kaas.hu
Kaas Otthon Ingatlaniroda

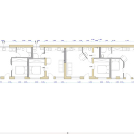
Alaprajz

Az ingatlan tulajdonságai
 140 m² alapterületű
 téglafalazatú
Zeleznik
István

Irodavezető, Értékesítési Vezető
+36 (30) 962-6389