25 0 0 0

Kisteleken 55m2-es lakás

37.18 M Ft

kérem, hívjanak vissza!

Eladó társasházi téglalakás
Kistelek, Belterület
Azonosító: KAAS-3514
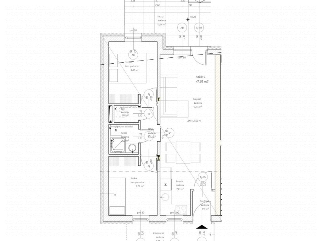
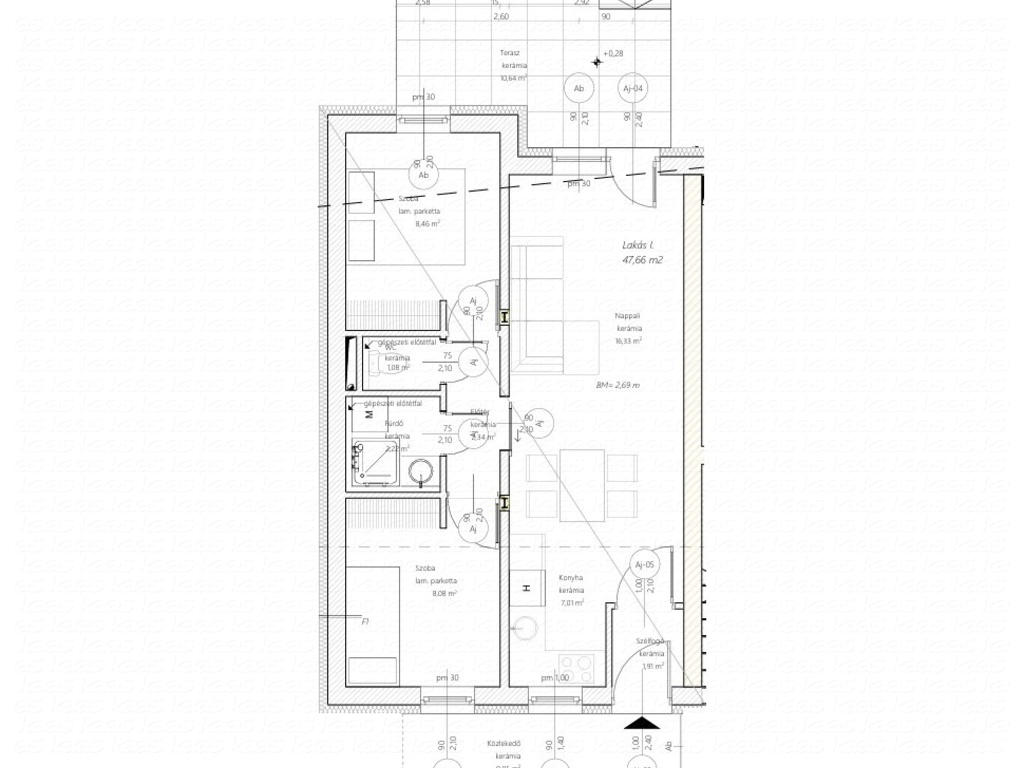
55 m² alapterületű
3 szobás
3 emeletes épületben
Földszint
Építés éve: 2025
szerkezetkész
Kistelek központjában a termálfürdő közelében YBL díjas építész által tervezett, új építésű, környezettudatos energiaellátású (napelem, termálvizes fűtés), földszinti, 3 szobás lakás eladó
Ybl díjas építész által tervezett, már folyamatban lévő építés alatti társasházban 55 m2-es szerkezetkész lakás eladó.
Igény szerint kulcsrakész állapot is kérhető.
Tervezett átadás: 2026. ősz

Főbb jellemzők:
- földszinti
- 2 hálószoba
- amerikai konyha-nappali
- 13m2-es terasz
- napelemes rendszer
- termálvizes központi fűtés
- udvari beálló vagy garázs vásárolható

Szerkezetkész bruttó eladási ár: 37.182.600,- Ft

Cégünk az ügyfeleink részére ingyenesen vállalja, a megegyezés sikeres lebonyolítását, jogi tanácsadást, illetve teljes körű CSOK és hitel ügyintézést!
A kínálatában található összes ingatlannal kapcsolatban felvilágosítást tudunk nyújtani!
Kérje ingyenes tájékoztatásunkat telefonon, vagy személyesen irodánkban a Szeged, Vitéz utca 32 szám alatt!

Szolgáltatásaink vevőink részére díjmentesek!
Amennyiben felkeltettem érdeklődését, kérem, hívjon bizalommal!

Kruchió Ágnes
ingatlan referens
Tel: +36309626471
E-mail cím: kruchio.agnes@kaas.hu
Kaas Otthon Ingatlaniroda

Alaprajz

Az ingatlan tulajdonságai
 55 m² alapterületű
 3 szobás
 3 emeletes épületben
 téglafalazatú
 új építésű épület
 amerikai konyhás
 összkomfortos
 napelem
 ABC közelben
 gyógyszertár közelben
 Iskola közelben
 óvoda közelben
 ambulancia közelben
 háziorvosi rendelő
 belvárosban
 alacsony fűtés költség
Kruchió
Ágnes

ingatlanközvetítő
+36 (30) 962-6471