254 0 0 0

Bordány új építésű házak

67.5 M Ft

kérem, hívjanak vissza!

Eladó ikerház, sorház
Bordány, Belterület
Azonosító: KAAS-3536
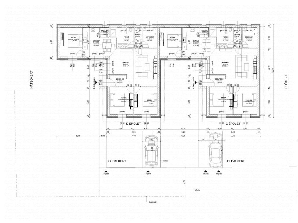
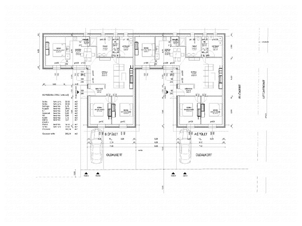
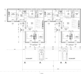
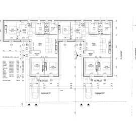
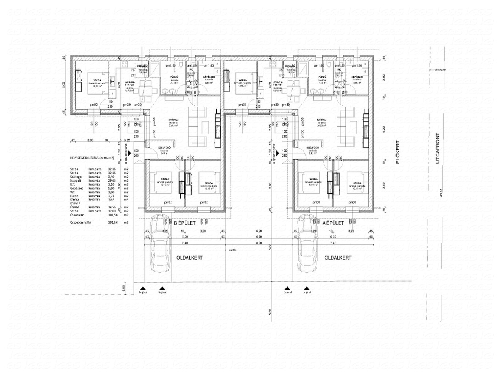
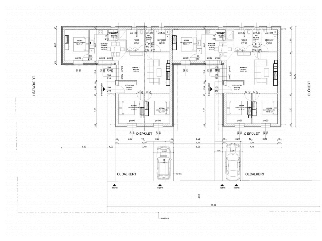
100 m² alapterületű
4 szobás
350 m² telekméret
Építés éve: 2025
elkezdve
Bordány fő utcáján elkezdett építésű ikerházak eladók.
Egyedi belső kialakítás megoldható a még tervezés alatt lévő beltérre.
Bordányban 100 m2 hasznos alapterületű, 4 szobás, nappalis, új építésű, tégla falazatú családi ház, 2025.12.01. beköltözéssel eladó.
A telek 350m2-es, könnyen megközelíthető, mindenhez közel helyezkedik el, , teljes közmű bekötéssel ellátva. Az építkezés CSOK és hitelképes.
A 2 ikerház lakásaiból még 3 szabad, belső kialakításukban a jövendő tulajdonos részt vehet, így egyedi belső elrendezésű házat kaphatnak.

Kulcsrakész eladási ár:
67.500.000,- Ft

Az áraink, a kivitelező áraival megegyezőek!
Cégünk az ügyfeleink részére ingyenesen vállalja, a megegyezés sikeres lebonyolítását, jogi tanácsadást, illetve teljes körű CSOK és hitel ügyintézést!
A kínálatában található összes ingatlannal kapcsolatban felvilágosítást tudunk nyújtani!
Kérje ingyenes tájékoztatásunkat telefonon, vagy személyesen irodánkban a Szeged, Vitéz utca 32 szám alatt!

Szolgáltatásaink vevőink részére díjmentesek!
Amennyiben felkeltettem érdeklődését, kérem, hívjon bizalommal!

Zeleznik István
Értékesítési vezető
Tel: +36309626389
E-mail cím: zeleznik.istvan@kaas.hu
Kaas Otthon Ingatlaniroda

Alaprajz

Az ingatlan tulajdonságai
 100 m² alapterületű
 4 szobás
 350 m² telekméret
 összkomfortos
Zeleznik
István

Irodavezető, Értékesítési Vezető
+36 (30) 962-6389