230 0 0 0

Nagycsaládnak, nagy ház!

124.9 M Ft

kérem, hívjanak vissza!

Eladó családi ház, villa
Szeged, Tápé
Azonosító: KAAS-3660
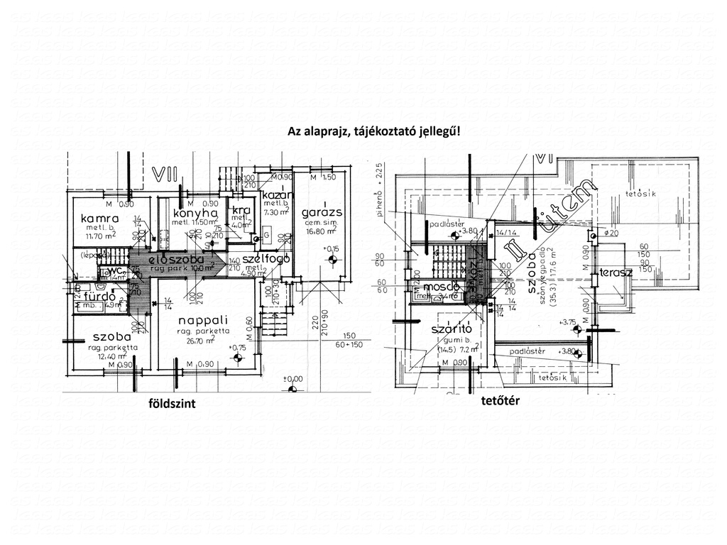
179 m² alapterületű
6 szobás
884 m² telekméret
2 épületből áll
2 szintes ingatlan
2021 évben felújítva
280 cm belmagasságú
Építés éve: 1985
használt ingatlan
Kaas Ingatlan Azonosító: 3660

Szeged Tápén, csöndes részen, tégla építésű jó állapotú, 179 m2-es, 6 szobás családi ház, eladó!
Főbb paraméterek:

• lakótér: 179 m2
• 884 m2 telek
• szoba száma: 2 egész +4 fél
• helyiségek: előszoba/konyha/étkező, 6 szoba, 2 fürdő/wc, kamra, garázs
• cirkófűtés fűtés
• új tető
• műanyag nyílászárók emeleten hőszigetelt fa nyílás zárók
• tégla építés
• nyárikonyha, mellék épület
• parkosított udvar
• nagy méretű garázs


Irányár: 124,9M Ft

Cégünk az ügyfeleink részére ingyenesen vállalja, a megegyezés sikeres lebonyolítását, jogi tanácsadást, illetve teljes körű CSOK és hitel ügyintézést!
A kínálatában található összes ingatlannal kapcsolatban felvilágosítást tudunk nyújtani!
Kérje ingyenes tájékoztatásunkat telefonon, vagy személyesen irodánkban a Szeged, Vitéz utca 32 szám alatt!

Szolgáltatásaink vevőink részére díjmentesek!
Amennyiben felkeltettem érdeklődését, kérem, hívjon bizalommal!

Zeleznik István
Értékesítési vezető
Tel: +36309626389
E-mail cím: zeleznik.istvan@kaas.hu
Kaas Otthon Ingatlaniroda

Alaprajz

Az ingatlan tulajdonságai
 179 m² alapterületű
 6 szobás
 884 m² telekméret
 2 épületből áll
 2 szintes ingatlan
 2021 évben felújítva
 280 cm belmagasságú
 alapzat vízszigetelve
 lábazat vízszigetelve
 téglafalazatú
 nemes vakolatos
 agyag cserepes
 fa ablakok
 műanyag ablakok
 hőszigetelt ablakok
 új, újszerű ablakok
 felújított bejárati ajtók
 tégla lábazatos kerítés
 közepes állapotú
 polgárias
 nappalival
 több hálószobával
 több fürdőszobás
 külön fürdőszoba, wc
 külön konyha, ebédlő
 szagelszívóval
 saját udvar
 saját kert
 duplakomfortos
 radiátoros
 gázkazán
 saját garázs
 végig aszfalton elérhető
 panorámás
 kertvárosban
 lakóház udvar
 CSOK kedv. hitel
 CSOK vissza nem tér.
 állatbarát lakóközösség
 kutya tartható
Zeleznik
István

Irodavezető, Értékesítési Vezető
+36 (30) 962-6389