240 0 0 0

Kisteleken 54m2-es lakás

38.31 M Ft

kérem, hívjanak vissza!

Eladó társasházi téglalakás
Kistelek, Belterület
Azonosító: KAAS-3662
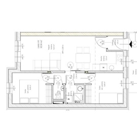
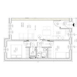
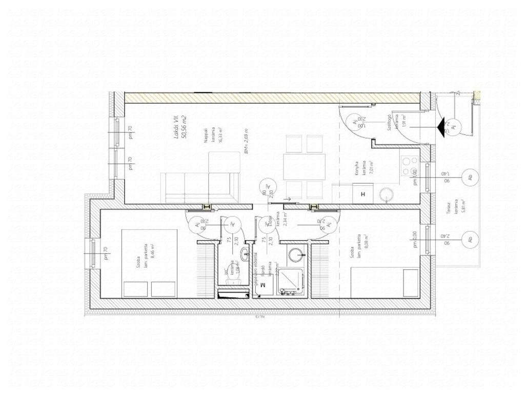
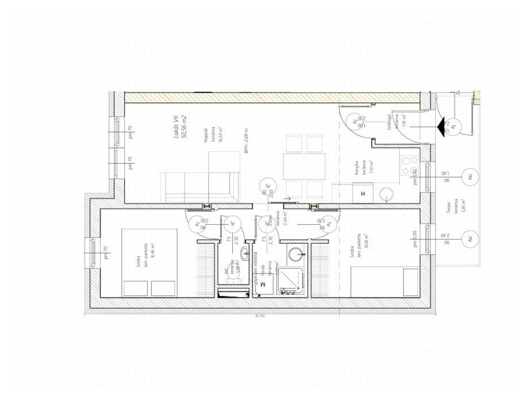
54 m² alapterületű
3 szobás
3 emeletes épületben
269 cm belmagasságú
2. emelet
szerkezetkész
Kistelek központjában a termálfürdő közelében YBL díjas építész által tervezett, új építésű, környezettudatos energiaellátású (napelem, termálvizes fűtés), 2 emeleti, 3 szobás lakás eladó
Ybl díjas építész által tervezett, már folyamatban lévő építés alatti társasházban 54 m2-es szerkezetkész lakás eladó.
Igény szerint kulcsrakész állapot is kérhető.
Tervezett átadás: 2026. IV. negyedév

Főbb jellemzők:
- 2 hálószoba
- amerikai konyha-nappali
- 6m2-es erkély
- napelemes rendszer
- termálvizes központi fűtés
- Igény és megegyezés szerint gépkocsibeálló (1,27M Ft/db) és garázs (8M Ft/db) is vásárolható az ingatlanokhoz!


Az áraink, a kivitelező áraival megegyezőek!
Cégünk az ügyfeleink részére ingyenesen vállalja, a megegyezés sikeres lebonyolítását, jogi tanácsadást, illetve teljes körű CSOK és hitel ügyintézést!
A kínálatában található összes ingatlannal kapcsolatban felvilágosítást tudunk nyújtani!
Kérje ingyenes tájékoztatásunkat telefonon, vagy személyesen irodánkban a Szeged, Vitéz utca 32 szám alatt!

Szolgáltatásaink vevőink részére díjmentesek!
Amennyiben felkeltettem érdeklődését, kérem, hívjon bizalommal!

Zeleznik István
Értékesítési vezető
Tel: +36309626389
E-mail cím: zeleznik.istvan@kaas.hu
Kaas Otthon Ingatlaniroda

Alaprajz

Az ingatlan tulajdonságai
 54 m² alapterületű
 3 szobás
 3 emeletes épületben
 269 cm belmagasságú
 téglafalazatú
 homlokzat új, újszerű
 homlokzat hőszigetelt
 műanyag ablakok
 hőszigetelt ablakok
 hangszigetelt ablakok
 új, újszerű ablakok
 új, újszerű ajtók
 újszerű padlóburkolat
 új építésű épület
 új építésű lakás
 modern
 nappalival
 több hálószobával
 új, újszerű fürdőszoba
 amerikai konyhás
 erkély, balkon, loggia
 összkomfortos
 napelem
 egyedi fűtésű
 padlófűtés
 mennyezethűtés
 hőszivattyús kazán
 ABC közelben
 gyógyszertár közelben
 Iskola közelben
 óvoda közelben
 ambulancia közelben
 háziorvosi rendelő
 buszmegálló közelben
 panorámás
 lakás
 alacsony fűtés költség
 kaputelefon
 zöldenergia felhasználás
Zeleznik
István

Irodavezető, Értékesítési Vezető
+36 (30) 962-6389