86 0 0 0

Falusi CSOK-os ház

79.99 M Ft

kérem, hívjanak vissza!

Eladó családi ház, villa
Balástya, Belterület
Azonosító: KAAS-3717
103 m² alapterületű
5 szobás
750 m² telekméret
30 % beépíthető
1 épületből áll
1 szintes ingatlan
260 cm belmagasságú
Építés éve: 2026
kulcsrakész
Balástyán a Honvéd utcában most induló projekt egy telken két különálló magánház leköthető kulcsrakész befejezéssel.
Kaas Ingatlan Azonosító: 3717

Balástyán a Honvéd utcában most induló projekt egy telken két különálló magánház leköthető kulcsrakész befejezéssel.
Bővebb leírás (adatlap) Keresi a tágas, modern otthont, ami energiatakarékos és a legújabb technológiákkal felszerelt?
Ne várjon tovább – most van lehetősége saját igényei szerint alakítani!

Ne maradjon le róla, kérjen időpontot még ma!
Stílus, tér és jövőbe mutató kényelem egyben!
Egy szintes, prémium emelt szintű szerkezetkész családi ház eladó!

Lakótér: 103 m²
Telek: 750 m²
Szobák száma: 5
Helységek: amerikai konyhás nappali, 4 hálószoba, kádas fürfőszoba wc, tusoló, külön wc

Padlófűtés – minden helyiségben kellemes meleg
Hőszivattyús fűtés rendszer – a fenntartható jövő jegyében

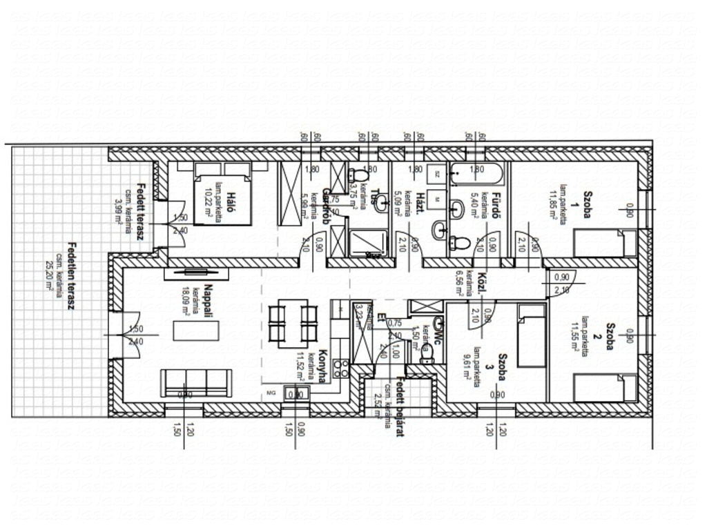
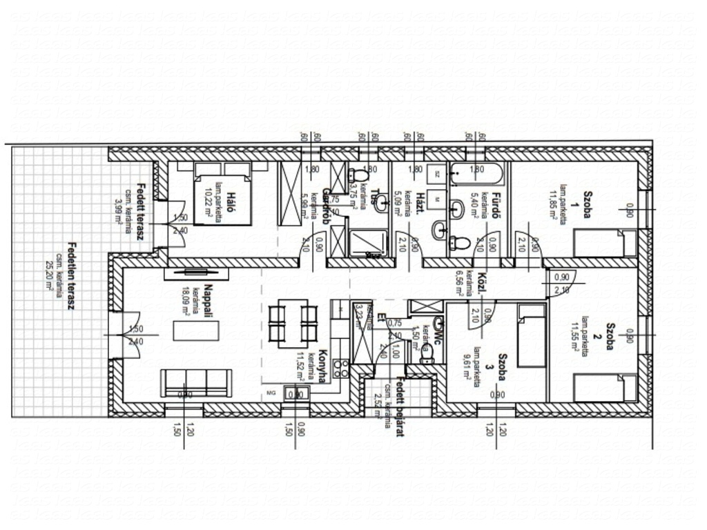
SZ0BA  laminált parketta: 11.85 m2
WC   kerámia: 1.5 m2
TUSOLÓ kerámia: 3.75 m2
KÖZLEKEDŐ kerámia: 6.56 m2
NAPPALI kerámia: 18.09 m2
KONYHA kerámia: 11.72 m2
ELŐTÉR kerámia: 3.99 m2
KÖZLEKEDŐ kerámia: 8.55 m2
FÜRDŐ kerámia: 5.40 m2
HÁZT. HELY. kerámia: 5.09 m2
SZ0BA  laminált parketta: 11.55 m2
SZ0BA  laminált parketta: 9.61 m2
SZ0BA  laminált parketta: 10.52 m2
FEDETLEN TERASZ: 25,2 m2
Összesen: 103 m2

BEJÁRAT ELŐTERE greslap: 3.99 m2


Hasznos alapterület: 103 m2

A feltüntetett ár kulcsrakészen értendő:: 79.990 000 Ft.

Cégünk az ügyfeleink részére ingyenesen vállalja, a megegyezés sikeres lebonyolítását, jogi tanácsadást, illetve teljes körű CSOK és hitel ügyintézést!
A kínálatában található összes ingatlannal kapcsolatban felvilágosítást tudunk nyújtani! Kérje ingyenes tájékoztatásunkat telefonon, vagy személyesen irodánkban a Szeged, Vitéz utca 32 szám alatt!

Szolgáltatásaink vevőink részére díjmentesek!
Amennyiben felkeltettem érdeklődését, kérem, hívjon bizalommal!

Szőkéné Biró Katalin
Ingatlan referens
Tel: +36 30 333 4644
E-mail: biro.katalin@kaas.hu
Kaas Otthon Ingatlaniroda

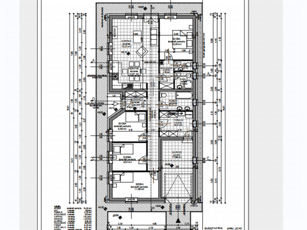
Alaprajz

Az ingatlan tulajdonságai
 103 m² alapterületű
 5 szobás
 750 m² telekméret
 30 % beépíthető
 1 épületből áll
 1 szintes ingatlan
 260 cm belmagasságú
 sávos beton alap
 téglafalazatú
 háromrétegű ablakok
 hőszigetelt ablakok
 újszerű padlóburkolat
 újszerű
 újépítésű
 luxuskivitel
 több fürdőszobás
 wc a fürdőszobában
 több wc
 tusolókabinos
 fürdőkádas
 saját udvar
 saját kert
 duplakomfortos
 luxus
 közvilágítás van
 lakossági víz bekötve
 hulladékszállítás van
 csatorna bekötve
 padlófűtés
 végig aszfalton elérhető
 ABC közelben
 buszmegálló közelben
 panorámás
 lakóház udvar
 CSOK kedv. hitel
 CSOK vissza nem tér.
Szőkéné Biró
Katalin

Ingatlanreferens
+36 (30) 333-4644