125 0 0 0

Társasházi téglalakás

48.7 M Ft

kérem, hívjanak vissza!

Eladó társasházi téglalakás
Mórahalom, Belterület
Azonosító: KAAS-3771
52 m² alapterületű
2 szobás
2 emeletes épületben
3 szintes ingatlan
270 cm belmagasságú
Építés éve: 2026
kulcsrakész
Frekventált helyen.
Mórahalom frekventált helyén új építésű társasházi lakások,
apartmanozás céljára is kiváló választás
Mórahalom frekventált helyén új építésű társasházi lakások eladók. Apartmanozás céljára is kiváló választás.
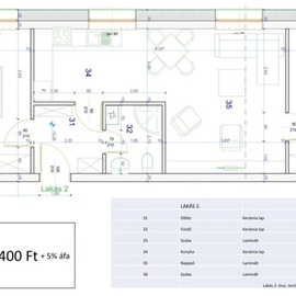
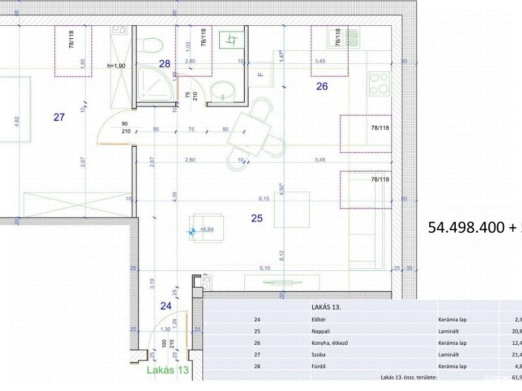
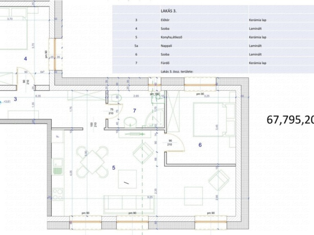
A lakásokból még 2 db földszinti, 1 db első emeleti, valamint 4 db tetőtéri, ami megvásárolható 45,66 nm-től 69,55 nm-ig. Garázs is vásárolható 10 millió Ft, valamint beálló 2,5 millió Ft-os áron. Az ingatlan porotherm 25 cm téglából épül, és 35 cm grafit szigeteléssel. Összesített energetikai jellemző követelményértéke: 72.34 kWh/m2, ami közel nulla energiaigényű épületnek felel meg. A lakások teljes területén elektromos padlófűtés lesz (infra szőnyeg). A hűtésre, és az extra fűtésre napelemes energiát biztosítunk. A burkolatok a vevők igénye alapján lesznek kiválasztva, ezért a birtokbaadás szerződés kötéstől számítva 2 hónap. Az ingatlan sajátosságai, és egyéb tulajdonságai miatt, ezt látni kell! Hívjon, nézze meg. Látogasson el a gyógyfürdőtől 1 percre található, mórahalmi ingatlanirodánkba, ahol személyre szabott szaktanácsadással várjuk.
Az ingatlan tulajdonságai
 52 m² alapterületű
 2 szobás
 2 emeletes épületben
 3 szintes ingatlan
 270 cm belmagasságú
 blokktégla falazatú
 nemes vakolatos
 homlokzat hőszigetelt
 hőszigetelt ablakok
 padlófűtés
 gépjármű beálló
 saját garázs
Szekeres
Zsolt

Irodavezető, ügyvezető
+36 (30) 997-2208